视美乐短焦变焦镜头SML-LA120C评测

SML-LA120C为市场上第一款0.7-1.2:1的投影镜头,倍焦比1.6倍。完全可以替代市场上所主流的0.8/0.8-1.0/1.0-1.2等常规短焦镜头,相比可以灵活确定投影安装位置,大大提高安装范围。
|
投射比: |
0.7-1.2:1 |
|
F值: |
1.6~1.9 |
|
焦焦: |
9.54mm ~ 16.35 |
|
位移量: |
±50% |
|
尺寸: |
200mm*112mm*38mm |
|
重量: |
约1.26kg |
|
适用机型 |
SML-PF420/ SML-PX500/ SML-PF500/ SML-PX600/ SML-PF600/ SML-PX700/ SML-PU700/SML-PF700/SML-PX800 |
☛ 超大倍焦
市场上第一款0.7-1.2:1的投影镜头,倍焦比1.6倍,超大变焦比在复杂的工程环境中可以得到灵活适用。

☛ 高亮度
测量画面13个点的实际亮度,亮度相比标镜高达110%的透射率(以视美乐5000流明激光投影机测试)。

☛ 超大位移量
与市场上常规短焦镜头上下30%位移量相比,SML-LA120C拥有上下达50%位移量。均可实现电动聚焦、变焦和位移,并且镜头位移范围宽广,可适应复杂的安装环境,同时支持使用遥控器或者网络控制镜头位移,操控性更为简单方便,也能轻松的控制。

☛ 高对比度

对比度指的是一幅图像中明暗区域最亮的白和最暗的黑之间不同亮度层级的测量,差异范围越大代表对比越大,差异范围越小代表对比越小。SML-LA120C实测各个范围内的黑白对比CcntrastRatio=49.7%.此次,我们通过应用专业测试图片,来进一步感受到这款镜头配合视美乐工程投影机在多方面的优异表现。由于视美乐PX500工程投影机结合了传统机型特点与激光光源优势,可以提供更好的应用感受。得益于激光光源的优势部分,使得投影画面色域更宽广,色彩还原更好,并且黑色更纯粹,对比度表现更出色,整体画面清晰,线条平稳流畅,带来了投影画质的明显提升。

☛ 畸变

一般来说,镜头畸变实际上是光学透镜固有的透视失真的总称,也就是因为透视原因造成的失真,这种失真对于投影的成像质量是非常不利的,SML-LA120C镜头光学设计以及用料考究,利用镜片组的优化设计、选用高质量的光学玻璃(如萤石玻璃)来制造镜片,完全使透视变形降到最低的程度。
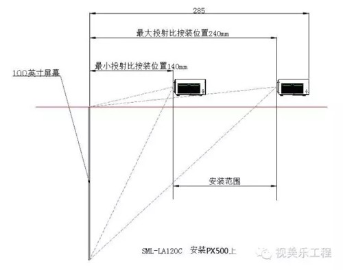
☛ 镜头装机实测效果图片




关于视美乐
无锡视美乐激光显示科技有限公司是中国激光显示研发与制造平台型企业,是无锡视美乐科技股份有限公司的全资子公司。公司成立于2012年5月,致力于激光显示核心部件与整机的研发、生产,推动激光显示的产业化、快速普及第四代显示技术为己任。视美乐独创的SLPL激光荧光光源技术,以蓝色激光激发与激光荧光管技术为核心,荧光全激发技术彻底解决了激光显示可能存在的辐射安全问题, 激光荧光管技术突破了激光荧光技术在亮度上的限制。视美乐秉承“硬件+软件+内容+运营”的生态化经营理念,在掌握了激光显示核心技术,开发出近十个系列激光显示整机产品之后,创造性地在产品中嵌入智能系统与传感系统,将激光显示从传统的显示产品一跃升级至激光大屏可视化智能中心,广泛应用于教育、工程、商用与家用领域,并尝试从产品与方案的供应商逐步转型为方案运营商。
联系视美乐
地址:江苏省宜兴市经济开发区光电产业园3号楼
电话:4008758115
网址:http://www.seemile.com.cn

免责声明:本文来源于视美乐,本文仅代表作者个人观点,本站不作任何保证和承诺,若有任何疑问,请与本文作者联系。
最新动态更多
- 多维联盟 智控未来▕ 联建光电新一代指挥中心显
- 【走进深圳】艾博德:精于创新研发,多元化应用
- 公共广播系统设计过程中需要考虑哪些点
- 雷蒙电子护航福州古厝保护与文化传承论坛
- 维康国际触摸拼接屏给你更便捷的操作体验
- AET阿尔泰加入广东光大集团高科技航母编队,共谋
- 宏碁投影机组合出拳,助力山东泰安农业展厅大放
- PHILIPS商显大屏打造泰康体验中心 让每一平米发
- 什么才是“入门级”4K投影机?揭秘“入门”背后
- 新品齐齐汇集成都InfoComm China展会 到现场亲身
- 台达Delta Controls O3门禁系统,懂安防更懂你!
- 鸿合科技超大尺寸薄玻璃物理钢化炉正式量产
- 摄影技巧分享:快速简便的增强图像的方法
- 他走过最危险的地方,拍过最震撼的画面


















官方微博